MADRID, 95-97
Lloguer des de 1.375 €/mes
AVD.MADRID, 95 - 97 08028 BARCELONA
T'assignarem un assessor comercial especialitzat per oferir-te tots els detalls.
Descripció
Edifici exclusiu d'oficines totalment rehabilitat situat a cinc minuts del Camp Nou.
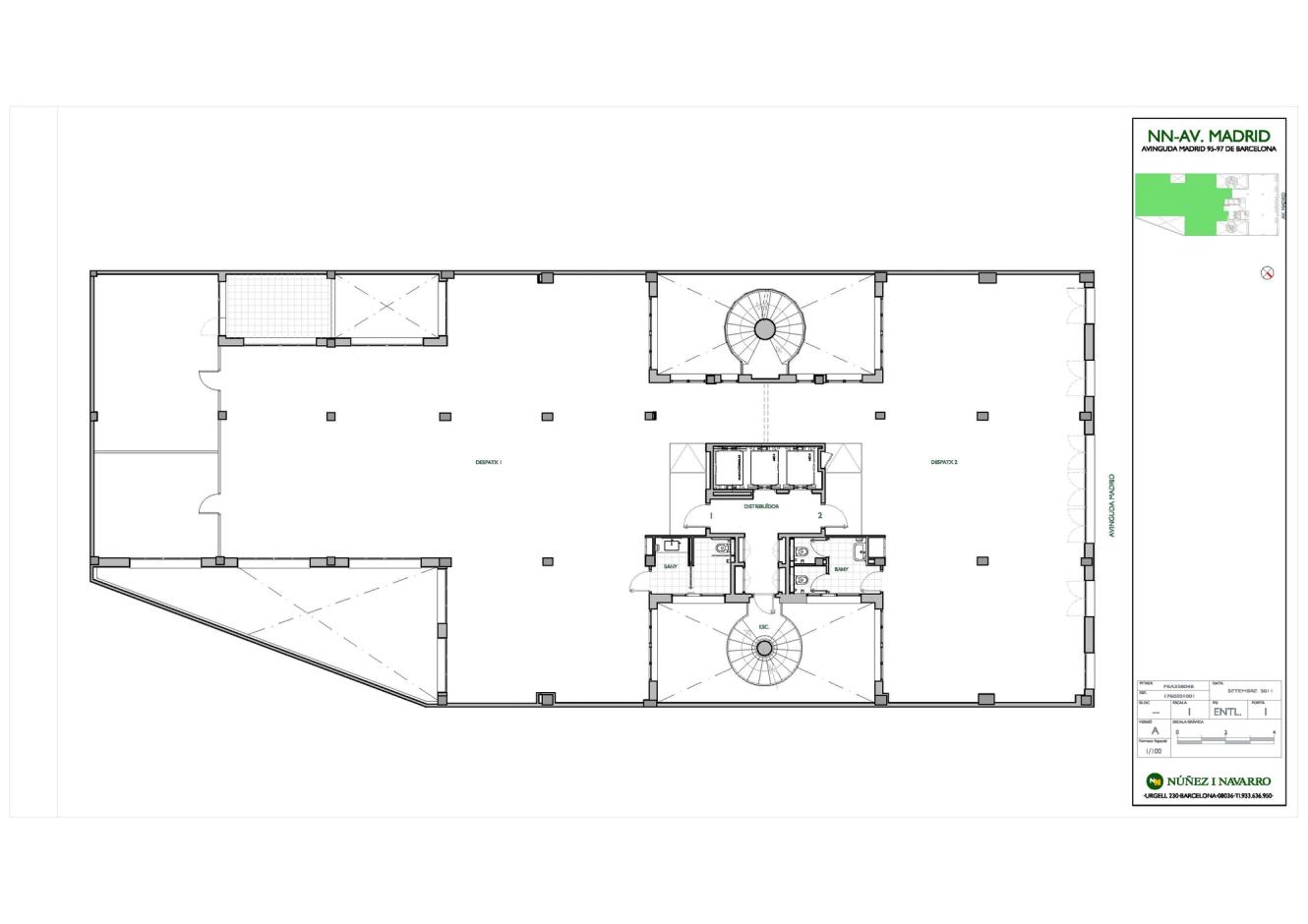
Àmplies i lluminoses plantes tant diàfanes com amb divisòries formant despatxos i sales de reunions. De dos a quatre lavabos.
Excel·lent acabats i especificacions tècniques: canalitzacions perimetrals de cablejat, fibra òptica, fals sostre amb lluminàries fluorescents encastades, terra tècnic i sistema de climatització independent per plantes. Finestres practicables i detectors d'incendis.
Àmplies i lluminoses plantes tant diàfanes com amb divisòries formant despatxos i sales de reunions. De dos a quatre lavabos.
Excel·lent acabats i especificacions tècniques: canalitzacions perimetrals de cablejat, fibra òptica, fals sostre amb lluminàries fluorescents encastades, terra tècnic i sistema de climatització independent per plantes. Finestres practicables i detectors d'incendis.
Oficines disponibles
Ubicació
Consulta en el mapa la ubicació d'aquest espai i descobreix els seus voltants, així com la seva bona connexió i serveis propers.
Com arribar-hi










































































































